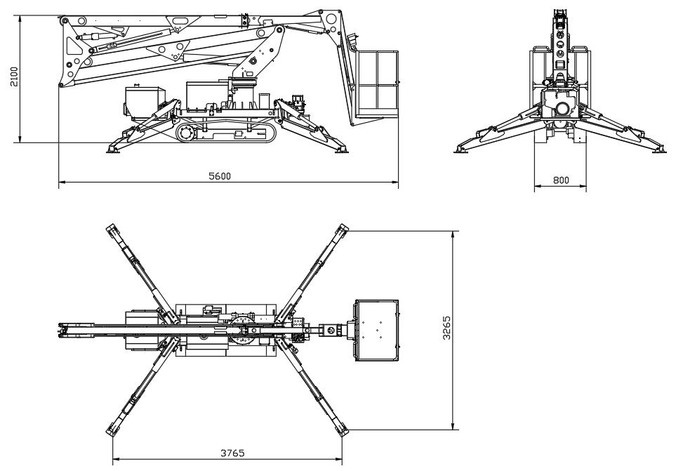
GTZB12型臂架式升降工作平臺,是一款小巧玲瓏,操作靈活方便的機器,精巧的設計使它可以通過有限空間的入口到達所要求的指定位置,存儲狀態下,寬度只有0.8米,可輕松通過單扇門,同時裝備了無痕橡膠履帶,非常適合在戶內使用。

該機器與同行業其他類型的高空作業平臺相比,在相同作業高度的情況下,尺寸更小,重量更輕,對地壓強小,特別適用于場地狹窄,道路條件差、樓內、裝飾地面等工況,其強大的場地適應能力是其他同類型高空作業平臺無法比擬的。
更適合于大型物資倉儲、大型生產制造等行業 采用無線遙控器或機身開關進行操作,作業安全可靠,速度更快 微型設計,體積小,起吊能力強,告別了在狹窄空間只能僅僅依靠人力工作的時代,既提高了工作效率又保證了工作的安全性.
作業高度高,車身窄,重量輕,設計緊湊,操作簡單,控制靈活;
地上、地下雙系統控制,機身和工作斗都可以控制設備的升降和旋轉,兩個系統互鎖,不會誤操作;
支腿一鍵調平/縮回,自帶支腿失壓安全保護,每個支腿也可獨立控制。
優越的折疊曲臂,可360度水水平旋轉,可140度垂直展開,可靈活跨越施工場所之間的障礙物。
當設備發生傾斜時,設備自動鎖死系統并停止所有動作,同時蜂鳴器報警,報警燈閃爍。
超重報警,檢測到工作斗超重時,系統報警。
平臺可延伸,同時在動作中自動調平,保證工作人員安全操作。
斷電、油盡的情況下,可采用緊急下降系統,降下平臺。
無痕橡膠履帶,可直線行走,可原地轉向;
選配內容:汽油機/柴油機+交流電機;鋁合金工作斗,
